Retail/Shop For Sale Fareham
PROPERTY ID: 98495
PROPERTY TYPE
Retail/Shop
STATUS
Under Offer
SIZE
4,204 sq.ft
Key Features
Property Details
Ground Floor 3,479 sq.ft (323.20 sq.m)
First Floor 725 sq.ft (67.35 sq.m)
Total Internal Area 4,204 sq.ft (390.56 sq.m)
Description
Fareham Is Situated Midway Between Southampton And Portsmouth On The M27. West Street Is The Main Retail Patch In The Town Of Fareham, With A Variety Of Independent Shops, Cafes And Restaurants. The Property Is Located On A Busy Road With Heavy Foot Traffic, And Good Public Transport Links.
The Property Comprises Of Self Contained Offices On The First Floor And A Retail Unit On The Ground Floor. The Two Storey Premises Has Been Fitted Out As A Post Office For Many Years, But Is Suitable For A Variety Of Uses. The Ground Floor Is Set Two Metres Further Back From The First Floor, Which Could Potentially Be Extended To Create A New Shop Front If Required. The Overhang Of The Building Can Be Used As Cover For Bikes, Tables And Chairs, Etc Subject To The Occupier.
Accommodation
Ground Floor 3,479 Sq.ft (323.20 Sq.m)
First Floor 725 Sq.ft (67.35 Sq.m)
Total Internal Area 4,204 Sq.ft (390.56 Sq.m)
Rating
Rateable Value £27,250
Source - Voa.gov.uk
Source Https://www.gov.uk/find-business-rates
Calculator: Https://www.gov.uk/calculate-your-business-rates
Terms
Offers In Excess Of £500,000 For The Freehold With Vacant Possession, Subject To Contract.
We Understand Vat Is Payable.
Planning
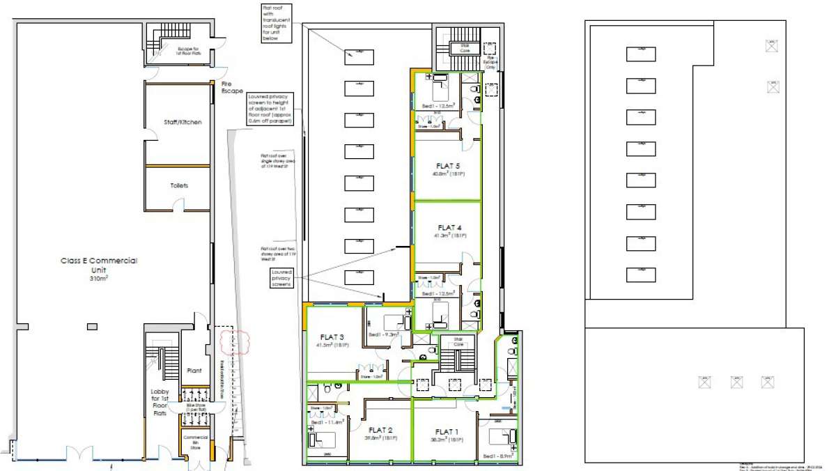
Planning Consent Granted For Single Storey Ground Floor Extension To Existing Commercial Unit, First Floor Rear Extension And Change Of Use Of First Floor To Provide 5x One Bedroom Flats.
Retention Of Commercial Unit Ground Floor 310 Sq M.
Planning Reference P/24/0263/fp
Epc Text
Asset Rating - D81
Anti Money Laundering
Please Note All Prospective Purchasers Will Need To Be Verified For 'anti Money Laundering' Purposes Prior To Issuing Memorandum Of Agreed Terms Of Sale.














































































































